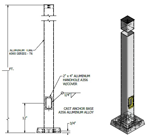
12′ Square Aluminum Anchor Base Pole with 4″ Shaft Size and .188″ Shaft Wall Thickness
CALL FOR PRICING
(Please select below)
Looking for a Custom Solution?
If these specifications don’t match your needs, let us know. We work with you to build a product you can use. To customize this specific product, add it to your quote and fill out the comment section with your preferred changes. Our customer service team will review your request and be in contact.
To learn more about our custom capabilities or to reach us about a full custom project, click here.
Product Information
Square aluminum street and area lighting poles in varying heights and dimensions. Poles cannot be purchased online. Please request a quote to start the process. NOTE: Please have wind zone, weight and EPA information available.
- Shaft - Straight Aluminum Tube Alloy 6000 Series
- Reinforced handhole with grounding lug and removable cover
- Top tenon or drill pattern with removable pole cap
- Four galvanized anchor bolts with galvanized hardware
- Anchor bolt templates included
- Four Cast Snap-in Bolt Covers included


